Besoindunplan
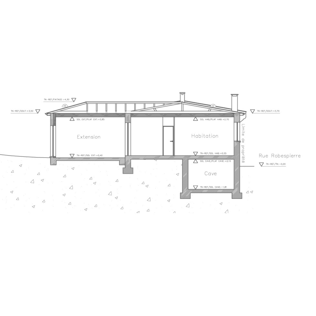
Plan de coupe (PCMI 3 / DPC3)
Plan de coupe (PCMI 3 / DPC3)
Impossible de charger la disponibilité du service de retrait
Un plan de coupe est un dessin qui illustre une construction avec une coupe verticale, un peu comme si vous découpiez le bâtiment en deux parties pour observer toutes les épaisseurs de mur et de plancher. Il permet d'observer les différentes hauteurs sous plafond, les fondations, ainsi que la manière dont la construction est implantée sur son terrain.
Ce plan est nécessaire pour l'élaboration d'un permis de construire, et l'est également dans le cadre d'une déclaration préalable lorsque vous modifiez ou créez de la surface habitable, ou encore lorsque vous modifiez le terrain comme pour la construction d'une piscine.
Important : Si votre projet nécessite une prise de cotes sur site, vous pouvez ajouter ce service à votre panier en complément. Rendez-vous sur le menu principal, catalogue, puis sélectionnez « Prise de cotes sur site ».
Vous avez une question avant de vous lancer ? Contactez-nous au 07 82 48 33 40.
Partager
